矿山起重机厂家制造销售的门式起重机、龙门吊产品简介:
MH型MH型3~10吨电动葫芦门式起重机(全花架式),这种整机自重轻,价格比对应全包箱的电动葫芦门式起重机来说,价格低,经济实用。用途较为广泛,个体工商户用的很多。欢迎选购。

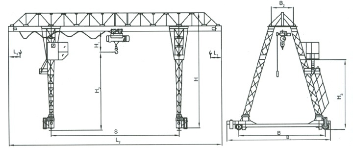
MH型3~10吨电动葫芦门式起重机(全花架式)

Lifting weight 起重量 | 跨度 Span | 起升高度 Lift Height | 悬臂长度 hanging arm length | 工作制度 working system | 电动葫芦 Electric Hoist | 运行机构 Travel Mechanism | 荐用轨道型号 Special track type | 主要尺寸 (mm) Main Size | 备注 Note | |||||||||||||
S | H2 | 型号 Type | 起升速度 Lift speed | 运行速度 Travel speed
| 运行速度 Travel speed | 减速机 Decelerator | 电动机 Motor | 总长度 Total length | 吊钩*限位置 Hook Limit Position | 操纵室至轨道面距离 Distance Between Operation Room and Track | 轮距Wheel Distance | 横梁 Crossbeam | 支腿上部中心 Center Distance for suport upper pat | 总高 Total Height | ||||||||
型号 type | 功率 power | |||||||||||||||||||||
吨 T | 米 Meter | 米/分 Meter/s | 千瓦 kw | L2 | H1 | i1 | i2 | H3 | B | B1 | B2 | H | ||||||||||
3 | 10 | 6 | 3 | A5 | CD1;MD1 | 8 ; 8/0.8 | 20(30)
| 30 | ZSC400-Ⅲ3/4/37.33 | YZR132M2-6 | 4×2 | P43 | 16 | 1160 | 600 | 650 | 4500 | 5644 | 6240 | 1400 | 9120 | 不同吨位与跨度及不同起升高度的总重和轮压见随机图纸 |
5 | 10 | 3 | 16 | |||||||||||||||||||
10 |
| 6 9 10 | 3 | 7 ; 7/0.7 | ZSC600-Ⅳ3/4/46.7 | YZR160M1-6 | 6.3×2 | 16 | 1600 | 700 | 750 | 5190 | 5830 | 1450 | 10550 | |||||||





