LH16/5吨电动葫芦双梁桥式起重机,主钩起重量16吨,副钩起重量5吨,
它的双主梁的起重小车架子上固定坐一台16吨的电动葫芦和一台5吨电动葫芦。

额定起重量Fixed litfing weight | t | 16/5 | ||||||||||
操纵形式operation type | 地面操纵From floor,操纵室操纵Clntrol driver room | |||||||||||
速度Speed | 主钩起升Primary hook lift | m/min | 3.5 | |||||||||
副钩起升Secondary hook litf | 8 | |||||||||||
小车运行handcart travel | 20 | |||||||||||
大车运行cart travel | 地面Floor | 20;30 | ||||||||||
操纵室Driver Room | 30;45;60 | |||||||||||
电动机Motor | 主钩起升Primary hook lift | 型号Type | ZD151-4/13 | |||||||||
副钩起升Secondary hook lift | ZD141-4/7.5 | |||||||||||
小车运行handcart travel | ZDY22-4/1.5×2 | |||||||||||
大车运行cart travel | 地面Floor | ZDY131-4/3×2 | ||||||||||
操纵室Driver Room | ZDR112L2-4/3×2 | |||||||||||
电动葫芦Electric Hoist | 型号Type | CD1;MD1 | ||||||||||
起升高度Lifting Height | m | 9;12;18/6;9;12;18;24;30 | ||||||||||
工作制度Working System | A5 JC=25% | |||||||||||
电源Power Supply | 3-PhaseA.C 三相交流;50Hz;380V | |||||||||||
荐用钢轨Steel Track | kg/m | 43 | ||||||||||
跨度Span | m | 7.5 | 10.5 | 13.5 | 16.5 | 19.5 | 22.5 | 25.5 | 28.5 | 31.5 | ||
*大轮压Max.Wheel Pressure | 13.1 | 13.5 | 14.0 | 14.6 | 15.3 | 16.1 | 16.9 | 17.7 | 18.5 | |||
自重weight | 地面操纵Floor | t | 10.8 | 11.5 | 15.5 | 16.8 | 17.7 | 18.7 | 20.0 | 24.4 | 26.9 | |
操纵室开式Driver Room Open Type | 11.3 | 12.0 | 16.0 | 17.4 | 18.2 | 19.3 | 20.5 | 25.0 | 27.5 | |||
操纵室闭式Driver | 11.4 | 12.1 | 16.1 | 17.5 | 18.3 | 19.4 | 20.6 | 25.1 | 27.6 | |||
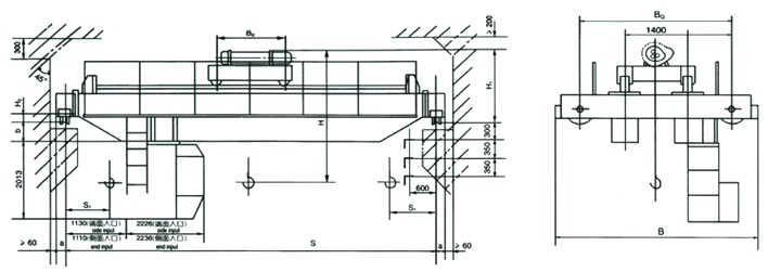
基 | B | mm | 5840 | |||||||||
BQ | 4800 | |||||||||||
BX | 1500(H=9,12);2000(H=18,24)2500(H=30) | |||||||||||
H1 | 1895 | |||||||||||
H2 | 170 | |||||||||||
H3 | 82 | |||||||||||
H4 | 525 | |||||||||||
a | 160 | |||||||||||
b | 20 | 130 | 96 | 196 | 296 | 396 | 546 | 646 | 746 | |||
c | 500 | |||||||||||
d | 150 | |||||||||||
S1 | 1600(H=9,12);1850(H=18 | |||||||||||




