
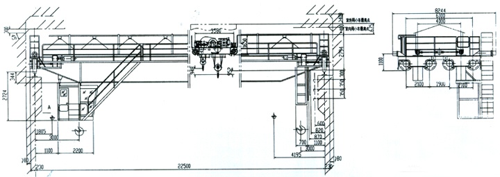
QD75/20吨双梁桥式起重机技术参数:
| 技术参数 Technological parameter | ||||||||||||||||||||||||
| 起重量Lifting Weight | t | 75/20 | 75/20 | 75/20 | ||||||||||||||||||||
| 跨度Span | m | 13.5 | 16.5 | 19.5 | 22.5 | 25.5 | 28.5 | 31.5 | 13.5 | 16.5 | 19.5 | 22.5 | 25.5 | 28.5 | 31.5 | 13.5 | 16.5 | 19.5 | 22.5 | 25.5 | 28.5 | 31.5 | ||
| 工作级别working class | A3 | A5 | A6 | |||||||||||||||||||||
| *大起升高度 Max Lift Height | 主 Primary | m | 20 | 20 | 20 | |||||||||||||||||||
| 副 Secondary | 22 | 22 | 22 | |||||||||||||||||||||
| 速度 speed | 起升 Lift | 主 Primary | m/min | 1.66 | 5.5 | 6.87 | ||||||||||||||||||
| 副 Secondary | 6.74 | 9.23 | 9.23 | |||||||||||||||||||||
| 小车运行 handcart travel | 12.32 | 38.4 | 38.4 | |||||||||||||||||||||
| 大车运行 cart travel | 33.2 | 30.3 | 77.6 | 66.2 | 78.1 | 66.7 | ||||||||||||||||||
| 电动机 Motor | 起升 Lift | 主 Primary | type/kw | YZR200L-8Z/22 | YZR315M-10Z/85 | YZR355M-10/90 | ||||||||||||||||||
| 副 Secondary | YZR200L-8Z/22 | YZR250M1-8Z/35 | YZR250M1-8Z/35 | |||||||||||||||||||||
| 小车运行 handcart travel | YZR132M2-6/5 | YZR180L-8/13 | YZR180L-8/13 | |||||||||||||||||||||
| 大车运行 cart travel | YZR160L-8/11×2 | YZR255M-8/26×2 | YZR250M1-8/30×2 | |||||||||||||||||||||
| 主要尺寸 (mm) Main Size | H | 3252 | 3252 | 3256 | 3260 | 3258 | 3262 | 3264 | 3252 | 3252 | 3256 | 3260 | 3258 | 3262 | 3264 | 3254 | 3254 | 3258 | 3262 | 3260 | 3264 | 3266 | ||
| H1 | 1318 | 1318 | 1322 | 1326 | 1324 | 1328 | 1330 | 1318 | 1318 | 1332 | 1326 | 1324 | 1328 | 1330 | 1320 | 1320 | 1324 | 1328 | 1326 | 1330 | 1332 | |||
| H2 | 398 | 538 | 542 | 546 | 844 | 848 | 850 | 398 | 538 | 542 | 546 | 844 | 848 | 850 | 400 | 540 | 544 | 548 | 846 | 850 | 852 | |||
| H3 | 2778 | 2918 | 2922 | 2926 | 3224 | 3228 | 3230 | 2780 | 2920 | 2924 | 2928 | 3226 | 3230 | 3232 | 2780 | 2920 | 2924 | 2928 | 3226 | 3230 | 3232 | |||
| H4 | 1588 | 1588 | 1584 | 1580 | 1582 | 1578 | 1576 | 1588 | 1588 | 1584 | 1580 | 1582 | 1578 | 1576 | 1586 | 1586 | 1582 | 1578 | 1580 | 1576 | 1574 | |||
| H0 | 0;50;100;150;200;250 | |||||||||||||||||||||||
| 重量 Weight | 小车运行 handcart travel | t | 24.0 | 27.7 | 28.3 | |||||||||||||||||||
| 总重 Total weight | 56.3 | 60.2 | 65.2 | 70.9 | 75.8 | 82.4 | 88.4 | 61.9 | 65.8 | 71.0 | 76.6 | 81.5 | 88.1 | 94.1 | 63.8 | 68.1 | 73.2 | 79.0 | 83.9 | 90.9 | 96.7 | |||
| *大轮压 Max.Wheel Pressure | KN | 266 | 278 | 285 | 294 | 305 | 316 | 326 | 274 | 287 | 299 | 309 | 319 | 330 | 341 | 286 | 302 | 313 | 324 | 334 | 346 | 355 | ||
| 荐用钢轨Steel track | QU100 | |||||||||||||||||||||||
| 电源Power Supply | 三相交流 3-Phase A.C. 50Hz 380V | |||||||||||||||||||||||
QD型75/20吨吊钩双梁桥式起重机的主钩起重量为75吨、副钩起重量为20吨,两个钩所吊工件总重不能大于75吨,主要由箱形桥架、卷扬式起重小车、大车运行机构和电气控制系统组成,取物装置是吊钩,也叫行车。
主梁上面铺设有轨道,供起重小车沿主梁方向作横向移动。主梁与箱型端梁焊接而成,端梁中间布置有接头,螺栓或销轴连接,供桥架分拆运输。
本行车的操作方式设有地面手柄、无线遥控和司机室三种操作形式。驾驶室有开式、闭式两种,内有可调式座椅,底板铺设绝缘垫,窗玻璃采用钢化玻璃,可根据用户要求配置冷暖空调、讯响器、对讲机等物品。
起重机可配挂马达抓斗、电磁吸盘等取物装置,满足吊运多种类型物料的需求。
起重机工作级别A3、A5、A6,也有A7,其中A3属于慢速桥式起重机,适宜在工厂、仓库及货场等处作装卸吊运工作。发电厂主汽机房用的也较多。





