双梁桥式起重机就是主梁是两根梁,而葫芦单梁桥式起重机的主梁是一根梁,二者外观结构区别很明显。

矿山起重机械、桥式起重机厂家讲解本产品:QD50/10吨吊钩桥式起重机也叫做行吊、行车、航吊、桁吊、天车,主要由双主梁、单小车、电器系统,分设主钩和副钩,主要由桥架、大车运行机构、卷扬式起重小车、电器设备等组成,起重小车由卷筒、电机、减速机、制动器、电器组成。卷筒上的钢丝绳直接下来缠绕在吊钩组上,取物装置是吊钩。
qd型双梁桥式起重机有:5吨双梁桥式起重机、10吨双梁桥式起重机、16吨双梁桥式起重机、20吨双梁桥式起重机、32吨双梁桥式起重机、50吨双梁桥式起重机、75吨双梁桥式起重机、100吨双梁桥式起重机、120吨、150吨、200吨、350 吨、400吨等行车。
比欧式桥式起重机便宜,用量较大。
根据使用频繁程度不同,分为A5、A6二种工作级别,也有慢速A3。
QD型双梁桥式起重机比LH型电动葫芦双梁桥式起重机耐用的多。
该起重机动作操纵全部在司机室内完成。矿山起重机价格合理,质量好,欢迎选购
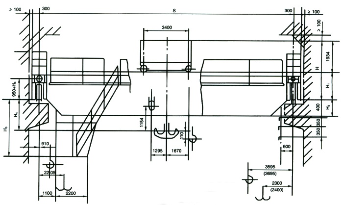
注:H0≤250为大车缓冲器增加的高度。





