
| 起重量Lifting Weight | t | 100/20 | 100/20 | ||||||||||||||
| 跨度Span | m | 13 | 16 | 19 | 22 | 25 | 28 | 31 | 13 | 16 | 19 | 22 | 25 | 28 | 31 | ||
| 工作级别working class | A5 | A6 | |||||||||||||||
| *大起升高度 Max Lift Height | 主 Primary | m | 22 | 22 | |||||||||||||
| 副 Secondary | 22 | 22 | |||||||||||||||
| 速度 speed | 起升 Lift | 主 Primary | m/min | 3.53 | 4.65 | ||||||||||||
| 副 Secondary | 7.2 | 7.2 | |||||||||||||||
| 小车运行 handcart travel | 33.86 | 33.86 | |||||||||||||||
| 大车运行 cart travel | 64.94(65.6) | 65.6 | 66.2(66.7) | 66.7 | |||||||||||||
| 电动机 Motor | 起升 Lift | 主 Primary | type/kw | YZR315M-10Z/85 | YZR355M-10/90 | ||||||||||||
| 副 Secondary | YZR225M-8Z/26 | YZR225M-8Z/26 | |||||||||||||||
| 小车运行 handcart travel | YZR180L-8/13 | YZR180L-8/13 | |||||||||||||||
| 大车运行 cart travel | YZR200L-8/18.5×2 YZR225M-8/26×2 | YZR225M-8/22 | YZR225M-8/22×2 (YZR250M1-8/30×2) | YZR225M-8/22 | |||||||||||||
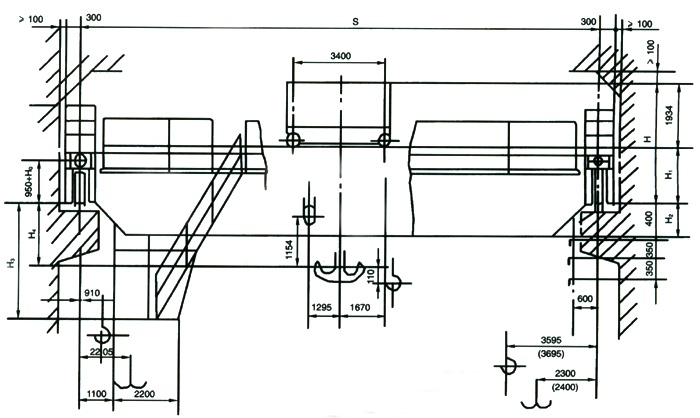
| 主要尺寸 (mm) Main Size | H | 3360 | 3362 | 3364 | 3370 | 3370 | 3372 | 3374 | 3362 | 3364 | 3366 | 3372 | 3372 | 3374 | 3378 | ||
| H1 | 1330 | 1332 | 1334 | 1340 | 1340 | 1342 | 1344 | 1332 | 1334 | 1336 | 1342 | 1342 | 1344 | 1348 | |||
| H2 | 538 | 540 | 544 | 550 | 850 | 852 | 854 | 540 | 546 | 552 | 852 | 852 | 854 | 858 | |||
| H3 | 2918 | 2920 | 2924 | 2930 | 3230 | 3232 | 3234 | 2920 | 2922 | 2926 | 2932 | 3232 | 3234 | 3238 | |||
| H4 | 1886 | 1884 | 1882 | 1876 | 1876 | 1874 | 1872 | 1884 | 1882 | 1880 | 1874 | 1874 | 1872 | 1868 | |||
| H0 | 0;50;100;150;200;250 | ||||||||||||||||
| 重量 Weight | 小车运行 handcart travel | t | 37.4 | 37.7 | |||||||||||||
| 总重 Total weight | 73.9 | 78.2 | 83.2 | 90.5 | 95.2 | 102.4 | 112.9 | 75.4 | 79.9 | 85.1 | 92.5 | 97.3 | 104.7 | 117.0 | |||
| *大轮压 Max.Wheel Pressure | KN | 350 | 363 | 377 | 391 | 401 | 414 | 425 | 353 | 370 | 385 | 400 | 411 | 424 | 411 | ||
| 荐用钢轨Steel track | QU120 | ||||||||||||||||
| 电源Power Supply | 三相交流 3-Phase A.C. 50Hz 380V | ||||||||||||||||
QD型100/20吨双梁吊钩桥式起重机其主要由箱形桥架、起重小车(包括减速机、电机、卷筒、制动器)、大车运行机构和电气控制系统组成,取物装置是吊钩。也叫行车、天车。
主梁上面铺设有轨道,供起重小车沿主梁方向作横向移动。主梁与箱型端梁焊接而成,端梁中间布置有接头,螺栓或销轴连接,供桥架分拆运输。
本行车的操作方式设有地面手柄、无线遥控和司机室三种操作形式。驾驶室有开式、闭式两种,内有可调式座椅,底板铺设绝缘垫,窗玻璃采用钢化玻璃,可根据用户要求配置冷暖空调、讯响器、对讲机等物品。
起重机工作级别A3、A5、A6,适宜在工厂、仓库及货场等处作装卸吊运工作,




