开云·体育

欢迎访问起重机_桥式起重机_门式起重机_厂家-开云·体育-开云(中国) 官方网站!
15249732888
吊钩双梁桥式起重机

YZ型75/20到125/32吨双梁铸造吊

价   格: 询价
关键词: 铸造吊 铸造起重机 冶金吊
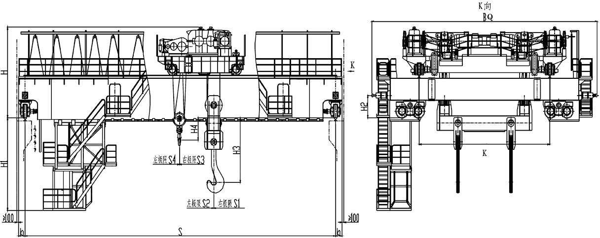
描   述: 铸造起重机:铸造吊有两个主梁
15249732888
起重机械详细说明:

矿山起重机厂家生产的行吊、桁吊、铸造起重机产品简介:


YZ型75/20~125/32吨双梁铸造桥式起重机矿山起重机的铸造吊上有2个主梁。

YZ型YZ 型图纸

相关产品:

起重机_桥式起重机_门式起重机_厂家-开云·体育-开云(中国)

葫芦双梁桥式起重机|电动单梁起重机行车|吊钩双梁桥式起重机|门式起重机 龙门吊|
15249732888

地址:河南省新乡市封尹起重工业园区

联系人:销售部 15249732888

邮箱:319929033@qq.com

起重机_桥式起重机_门式起重机_厂家-开云·体育-开云(中国)  版权所有   友情链接:  |  |  |  | 
关闭
15249732888